Продам трехкомнатную квартиру в новостройке 94.5 м.кв.

на карте
Просмотров 17
14 458 500 руб.
Гурьевск , Героя России Катериничева улица, д.1
Отдел продаж
Показать телефон
Данные актуальны на 01.04.2026
Пожаловаться на объявление
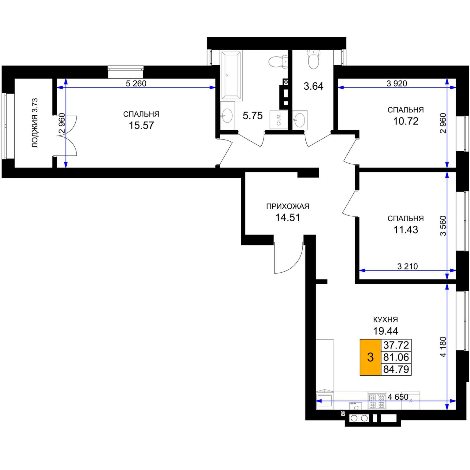
Продается 3-комн. квартира, площадью 94.5 м2 в монолитно-кирпичной новостройке. Возможен вариант покупки с использованием ипотечных средств, есть рассрочка, возможна покупка с использованием материнского капитала, есть военная ипотека. Жилая площадь 41.62 м2, кухня 19.44 м2, предчистовая отделка. Квартира располагается на 1 этаже 7-этажного дома в ЖК Включи. Застройщик - ГК ССК, сдача дома - I квартал 2026 года, высота потолков 2.7 м. Дом оборудован пассажирским лифтом. Парковка автомобилей - наземная. Инфраструктура: спортивные площадки, места для отдыха, супермаркет, коммерческие объекты. Представляем вашему вниманию жилой комплекс комфорт-класса «Включи», расположенный в экологически чистом, окруженном зеленью, тихом и спокойном районе с хорошо развитой инфраструктурой всего в 3 км от Калининграда. Здесь вы сможете насладиться всеми преимуществами загородной жизни, не отрываясь от большого города. Живите активно и с комфортом! На территории комплекса есть всё для активного образа жизни: современные ворк-аут зоны и спортивные площадки для коллективных видов спорта. Мы позаботились о чистоте и комфорте: Стильные, сквозные подъезды с доступом с улицы и со двора. Лапомойки на входе - забудьте о грязных следах в квартире. Дополнительная очистка воды - забота о качестве вашей жизни. АКЦИЯ: Мы рады представить уникальное предложение, которое поможет вам осуществить мечту о собственном жилье! Только сейчас, при наличном расчете, вы можете воспользоваться выгодой Это возможность стать владельцем квартиры в ЖК «Включи» по действительно выгодной цене. Не упустите возможность стать обладателем комфортного и современного жилья, где каждая деталь продумана для Вашего удобства. ЖК «Включи» предлагает все необходимое для комфортной жизни: развитую инфраструктуру, уютные зоны отдыха и близость к важным объектам городской жизни. Позвоните и узнайте условия покупки прямо сейчас!

Параметры здания

Тип дома Монолитно-кирпичный Год постройки 2026 Дом сдан Да Лифт Есть
Мусоропровод - Охрана/консьерж Нет Парковка Нет

Параметры объекта

Этаж 1 Этажность 7 Площадь комнат - Жилая площадь 41.62 м.кв. Площадь кухни 19.44 м.кв. Высота потолков 2.7 м. Покрытие пола - Санузел - Балкон -
Окна выходят - Телефон - Интернет - Мебель - Бытовая техника - Кондиционер - Отделка - От застройщика Нет

Параметры продажи

Тип продажи Первичная продажа Торг -
Ипотека Да
Объекты, находящиеся поблизости
Столовые, кафе
Пражский 799м
Динамика изменения цен на рынке недвижимости ?

За последние полгода средняя сумма за кв.м. выросла на 299 руб. Колебание цен происходило от 144063 руб. до 144362 руб. Тендов к значительному изменению цены в последнем месяце не наблюдается.
Похожие объявления
Обновлено
02.04.2026
Фотографии
29
Объявление 4953386
Гурьевск, Героя России Катериничева улица, д.1
12 960 000
руб. Продажа
86.4 м2
Обновлено
02.04.2026
Фотографии
71
Объявление 4950689
Гурьевск, Героя России Катериничева улица, д.1
10 441 200
руб. Продажа
79.1 м2
Обновлено
02.04.2026
Фотографии
29
Объявление 4955983
Гурьевск, Героя России Катериничева улица, д.1
12 224 800
руб. Продажа
82.6 м2
Обновлено
02.04.2026
Фотографии
29
Объявление 4950082
Гурьевск, Героя России Катериничева улица, д.1
13 617 000
руб. Продажа
89 м2
Обновлено
02.04.2026
Фотографии
29
Объявление 4953421
Гурьевск, Героя России Катериничева улица, д.1
11 392 920
руб. Продажа
86.3 м2
Обновлено
02.04.2026
Фотографии
29
Объявление 4950389
Гурьевск, Героя России Катериничева улица, д.1
14 458 500
руб. Продажа
94.5 м2
Обновлено
02.04.2026
Фотографии
29
Объявление 4950078
Гурьевск, Героя России Катериничева улица, д.1
12 195 200
руб. Продажа
82.4 м2
Обновлено
02.04.2026
Фотографии
71
Объявление 4956002
Гурьевск, Героя России Катериничева улица, д.1
11 101 200
руб. Продажа
84.1 м2
Обновлено
02.04.2026
Фотографии
29
Объявление 4957240
Гурьевск, Героя России Катериничева улица, д.1
10 284 120
руб. Продажа
77.9 м2
Обновлено
02.04.2026
Фотографии
71
Объявление 4950739
Гурьевск, Героя России Катериничева улица, д.1
10 946 760
руб. Продажа
82.9 м2
Вход в личный кабинет